Nuestro proceso: De la visión a la realidad
En RB Proyectos Urbanos y Residenciales, cada proyecto es un viaje planificado con precisión. Desde la primera idea hasta la entrega final, nuestro proceso está diseñado para ofrecerte claridad, transparencia y, sobre todo, la calidad que mereces. Descubre cómo transformamos tus sueños en espacios concretos en Monterrey, México.

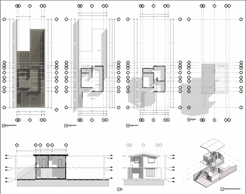
Paso 1: Diseño y anteproyecto
Todo comienza contigo. Realizamos un levantamiento en sitio y una reunión presencial detallada para entender a fondo tus necesidades y deseos. Con esta información, creamos plantas arquitectónicas para optimizar la distribución del área, alzados y secciones que definen la forma, y renders isométricos para una primera visualización clara de tu futuro espacio. Este es el primer paso para materializar tu visión.

Paso 2: Interiorismo y visualización avanzada
Para que vivas tu proyecto antes de construirlo, desarrollamos el interiorismo. Esto incluye vistas 3D exteriores e interiores, detalladas vistas 2D de mobiliario y, si lo deseas, un recorrido virtual y animación que te sumergen completamente en tu futuro hogar o negocio. Cada detalle es pensado para tu confort, estilo y funcionalidad, asegurando que el diseño cumpla con tus expectativas.

Paso 3 y 4: Ingeniería y proyecto ejecutivo integral
La solidez y funcionalidad son clave. Nos encargamos de todos los planos de instalaciones: eléctrica, sanitaria, gas e hidráulica. Luego, consolidamos todo en un proyecto ejecutivo completo, que abarca desde el catálogo de conceptos y planos de cimentaciones (con corte estructural y detalle de armado) hasta cortes sanitarios y pluviales, plano de conjunto, croquis de ubicación y, de ser necesario, un cuadro de áreas y programa de ejecución de obra. Este rigor asegura la viabilidad, seguridad y calidad de cada construcción.
"La calidad es el pilar de RB Proyectos. Desde el diseño inicial hasta el último detalle constructivo, nuestro compromiso es superar tus expectativas, entregando espacios que no solo cumplen, sino que inspiran y perduran."
Esta es la garantía de RB Proyectos Urbanos y Residenciales. ¿Listo para construir tu visión con un equipo enfocado en la excelencia? Contáctanos hoy mismo para comenzar a diseñar tu futuro.